Zum Inhalt springen
Waldmann Architekten

Waldmann Architekten

  • Startseite
  • Projekte
  • Büro
    • Stellenangebote

Anbauten Darmstädter Hütte bei St.Anton am Arlberg (neu)

Darmstädter Hütte bei St. Anton am Arlberg
Darmstädter Hütte Südansicht
Darmstädter Hütte Nordwestansicht mit Garagenneubau
Baubeginn September 2022, Baustelle auf 2.384m mit frühem WintereinbruchDarmstädter Hütte, Beginn Bauarbeiten 2022
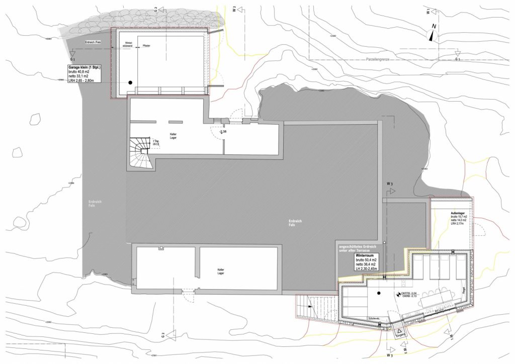
Anbau von einem Winterraum und einer Garage, Baubeginn September 2022Darmstädter Hütte, Untergeschoss
Baubeginn September 2022, Baustelle auf 2.384mDarmstädter Hütte, Anbau von einem Winterraum und einer Garage, Ansicht Südwest
Winterraum innen_Alkoven
Winterraum innen

Beitragsnavigation

Vorheriger Beitrag

Neubau Magazin und Verwaltungsgebäude, Mannheim Vogelstang (neu)

Nächster Beitrag

Zahnarztpraxis Hochstadt/Pfalz (neu)

  • Startseite
  • Projekte
  • Büro
  • Impressum & Datenschutz
Waldmann Architekten
Impressum & Datenschutz
Mit Stolz präsentiert von WordPress.